
The Perfect Work-Life Balance: A 7m x 4m Garden Office Log Cabin
A premium 7m x 4m garden office with 70mm logs, superior insulation, and modern tilt and turn windows, designed for year-round remote working.
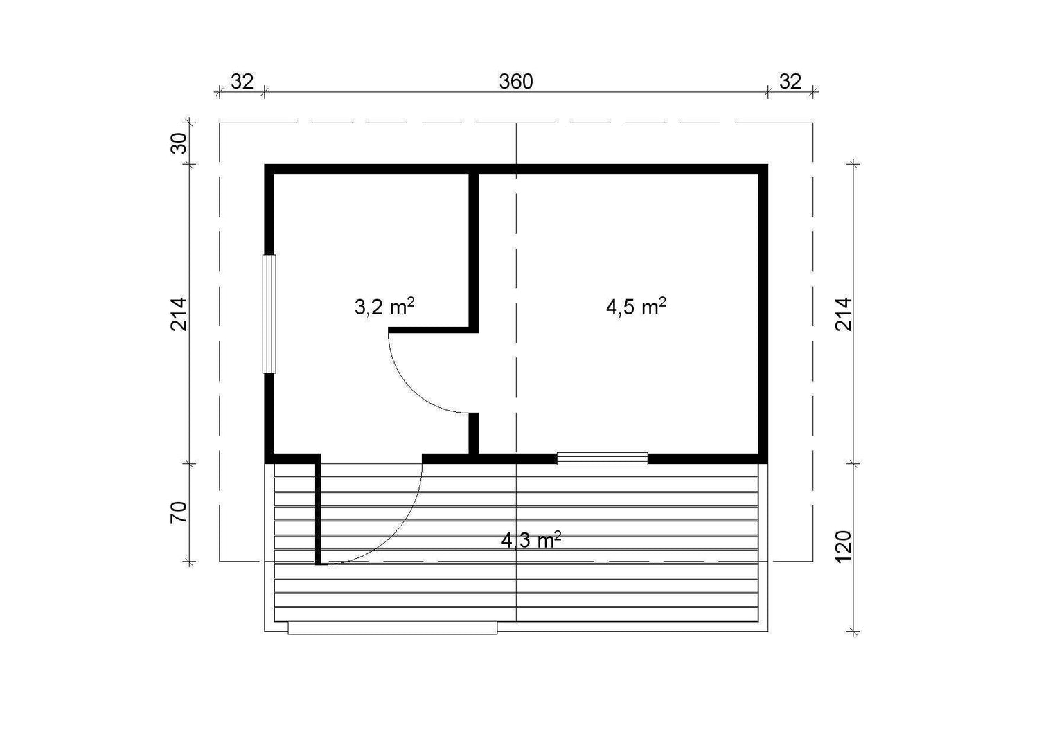
PIHA-TUURI 12 Sauna Log Cabin | 3.8x2.4m - 70mm / Not Required is backordered and will ship as soon as it is back in stock.
Couldn't load pickup availability
PIHA-TUURI 12 Sauna Log Cabin | 3.8x2.4m
Sauna Cabin for sale
The PIHA-TUURI 12 Sauna is 3.8x2.4m and features an electric heater or wood burner, providing ample space for you to relax and unwind. With its durable construction and stylish design, this sauna will become a favourite spot in your home.
Customise Your Log Cabin
If you would like to make amendments to one of our cabins, or would you prefer a fully bespoke design, Fill in our custom log cabin form with some details on your project and upload your plans for a free, no obligation quote. Our experienced team will get back to you as soon as possible.
Speak To Us Directly
Timber Building Specialists Ltd
E: sales@timberbuildingspecialists.co.uk
Tel:
Manchester Office | 07748500184
Coventry Office | 07464090196
Gloucester Office | 07464090196
Features of the PIHA-TUURI 12 Sauna Log Cabin | 3.8x2.4m