
The Perfect Work-Life Balance: A 7m x 4m Garden Office Log Cabin
A premium 7m x 4m garden office with 70mm logs, superior insulation, and modern tilt and turn windows, designed for year-round remote working.
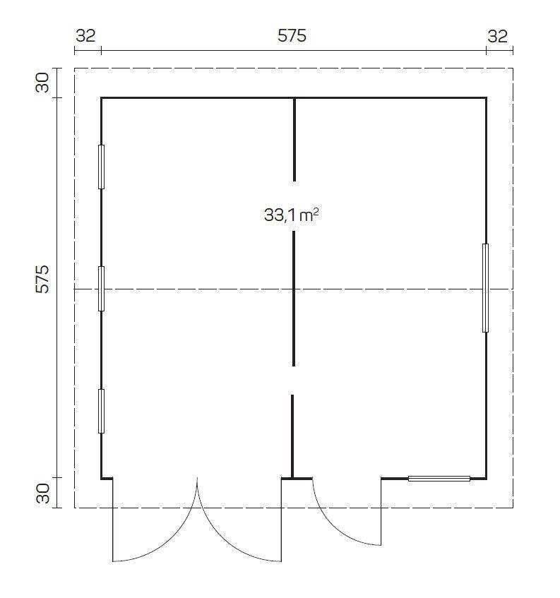
MIKKELI Log Cabin Garage | 6.0x6.0m - 70mm is backordered and will ship as soon as it is back in stock.
Couldn't load pickup availability
MIKKELI Log Cabin Garage | 6.0x6.0m
Log Cabin Garage
Customise Your Log Cabin
If you would like to make amendments to one of our cabins, or would you prefer a fully bespoke design, Fill in our custom log cabin form with some details on your project and upload your plans for a free, no obligation quote. Our experienced team will get back to you as soon as possible.
Speak To Us Directly
Timber Building Specialists Ltd
E: sales@timberbuildingspecialists.co.uk
Tel:
Manchester Office | 07748500184
Coventry Office | 07464090196
Gloucester Office | 07464090196
Features of the MIKKELI Log Cabin Garage | 6.0x6.0m